Hrsz:
4091/2A
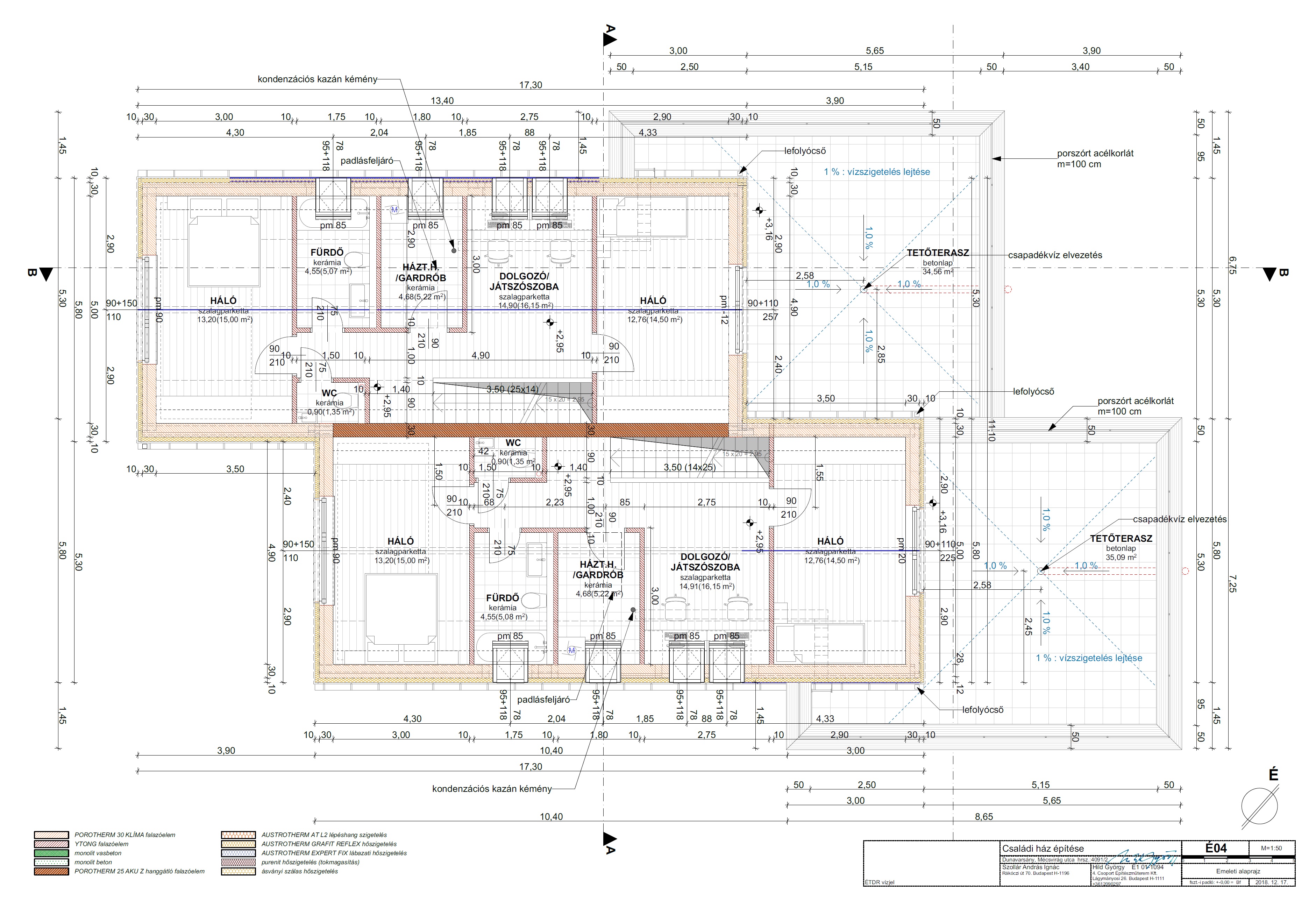
Ez a modern családiház a lakópark egyik legújabb fejlesztési területén található. A legjobb helykihasználás érdekében ikerháznak építettük. Szerkezetileg nagyobbrészt önálló, energia megtakarítás szempontból előnyös ez a kialakítás. Hagyományos téglaszerkezetből (porotherm rendszer) építjük, formabontó építészeti kialakítással, rugalmasan használható terekkel, barátságos nappalival, figyelemfelkeltő terasszal és arányos méretű kerttel rendelkezik.
Alap adatok:
- Nettó lakóterület: 141.9 m2 (190cm-nél nagyobb belmagasságú lakótér 118,4 m2, és 50%-ban beszámított terasz 23.5 m2)
- Bruttó beépített terület: 189 m2 (Lakás 125 m2, Terasz: 47 m2, Garázs 17 m2)
- Telekméret 391,5 m2
- Belmagasság 2,65 m
- Ár: eladva!
Felszereltség:
- Közel nulla energiás: BB-energetikai besorolású, 4kW-ig bővíthető Napelem rendszerrel!
- Elektromos hálózat (kábel-TV, telefon csőhálózat) kiépítve, Schneider szerelvények.
- Riasztó csövezés és kábelezés kiépítve, utcai kültéri lámpák felszerelve.
- Teljes víz,-csatorna,-gáz hálózat kiépítve.
- Fűtés hálózat előkészítve (Immergas típusú kombi-cirkó), fürdőszoba, konyha, étkező, nappali, előtér és garázs padlófűtéssel, a hálószobák radiátorral.
- A vételár tartalmazza a fűtés és melegvíz ellátás készülékeinek felszerelését és üzembehelyezését.
- A garázsajtó (szekcionált) távirányítással ellátva, a kertkapu távirányításra előkészítve.
- Befejező munkálatok az alábbi anyagárakkal (kiépítésük opcionális):
- Hideg-burkolás: 5000 Ft/m2
- Meleg-burkolás: 3000 Ft/m2
- Fürdő és konyha: 2.5 millió Ft
Műszaki leírás:
- Falazás: POROTHERM 30K rendszerű kézi „Okostégla” falazóblokk
- Válaszfalak: POROTHERM NF 10-es válaszfallap
- Kiváltók: POROTHERM rendszerű áthidalók a tervezett ajtók és ablakok fölött
- Hőszigetelés: Födémen 25 cm kőzetgyapot, oldalfalon dryvit rendszerben 10 cm Grafitos EPS és lábazaton 10 cm XPS
- Nyílászárók: 3-rétegű üvegezéssel ellátott, 5 légkamrás ACTUAL (osztrák) Matrix F-típusú nyílászárók és beépített tokos, elektromos vezérlésű alumínium redőny
- Garázsajtó: szekcionált és hőszigetelt
- Tetőablak: 3-rétegű üvegezéssel ellátott, VELUX tetősík és térdfalablakok
- Tetőszerkezet: Terrán Zenit - CLIMACONTROL cserépfedés, fóliával +egyéb kiegészítő elemekkel, láng- és gomba-mentesített, fenyőfából készült nyeregtető
- Homlokzati vakolat: Pasztellszínű STO (német) dryvit nemesvakolat
- Alapozás, koszorúk és födém: Statikai terv szerint vasalt, C20/24-es beton, monolit beton födémrendszer
- Vízszigetelés: Gv 4,5mm-es üvegfátyol hordozórétegű bitumenes hegeszthető lemezszigetelés
- Bádogos szerkezetek: LINDAB ereszcsatorna és lemezszerkezetek, hófogók minden szarufán
- Belső falburkolatok: Glettelve, minden él élvédővel ellátva, szilikátos STO (német) festékkel egyszer lekenve
- Az épület körüli járda és a belső utak: VIACOLOR (6 cm-es) ill. 8 cm-es betonból cementsimítással, 5 cm kavicságyazatra fektetve
- Kerítés és kapuk: Az ingatlan teljesen körülkerítve, utcavonalon 3 m-es tolókapu, 1,2 m-es kiskapu és 1,8 m-es szervizkapu, VB oszlopok között.
Az éppen aktuális részletekről érdeklődjön személyesen.
Ár:
Eladva!
Térkép:
























