Back to top

Árvalányhaj utca

Hrsz: 
4091/4 B

Ez a modern családiház a lakópark legújabb fejlesztési területén található. A legjobb helykihasználás érdekében ikerháznak építettük, a rövid közös falrészen hanggátló téglából. Hagyományos téglaszerkezetből (porotherm rendszer) építjük, modern építészeti kialakítással, rugalmasan használható terekkel, kandallóval kiegészíthető barátságos nappalival, figyelemfelkeltő terasszal és tágas kerttel rendelkezik.

Alap adatok: 
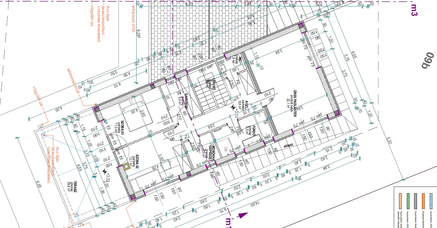
  • Bruttó beépített terület: 212,5 m2 (Lakás 155,8 m2, terasz: 24,8 m2, Garázs 31,6 m2)
  • Nettó lakóterület: 155,8 m2 (minden helyiség 190cm-nél nagyobb belmagasságú, terasz nincs beleszámítva)
  • Lakáshoz tartozó telekméret kb. 895,5 m2
  • Belmagasság 2,65 m
  • ÁR: meghatározás alatt!
Elhelyezkedés a lakóparkban.
Felszereltség: 
  • Falazás: POROTHERM 30K rendszerű kézi „Okostégla” falazóblokk, az ikerház lakótereit elválasztó közös fala hanggátló téglából
  • Válaszfalak: POROTHERM NF 10-es válaszfal tégla
  • Kiváltók: Főfalak nyílászáróinál POROTHERM rendszerű áthidalók
  • Hőszigetelés: Tetőszerkezet és kapcsolódó födémen 30 cm kőzetgyapot, oldalfalon dryvit rendszerben 10 cm Grafitos EPS és lábazaton 10 cm XPS
  • Nyílászárók: 3-rétegű üvegezéssel ellátott, 5 légkamrás ACTUAL (osztrák) Matrix F-típusú nyílászárók és beépített tokos, elektromos alumínium redőny
  • Garázsajtó: HÖRMANN típusú szekcionált és hőszigetelt, távirányítással ellátva
  • Tetőszerkezet: Terrán Zenit - CLIMACONTROL cserépfedés, fóliával +egyéb kiegészítő elemekkel, láng- és gomba-mentesített, fenyőfából készült nyeregtető
  • Homlokzati vakolat: Pasztellszínű STO (német) dryvit nemesvakolat
  • Alapozás, koszorúk és födém: Statikai terv szerint vasalt, C20/24-es és C25/24-es beton, monolit beton födémrendszer
  • Vízszigetelés: GV 4,5mm-es üvegfátyol hordozórétegű bitumenes hegeszthető lemezszigetelés
  • Kémény: Az épülethez egykürtős (DN18), előregyártott kémény tartozik
  • Bádogos szerkezetek: LINDAB ereszcsatorna és lemezszerkezetek, hófogók minden szarufán
  • Belső falburkolatok: Glettelve, minden él élvédővel ellátva, szilikátos STO (német) festékkel egyszer lekenve
  • Belső utak: VIACOLOR rendszerű (6 cm-es) térburkolat, épület körül 0.5 m szélességben kavicsos feltöltés
  • Kerítés és kapuk: Az ingatlan teljesen körülkerítve, utcavonalon 4 m-es tolókapu, 1 m-es kiskapu, 3 m-es szervizkapu, vasbeton oszlopok között.

Az éppen aktuális részletekről érdeklődjön személyesen.

Műszaki leírás: 
  • 2,7 kW-os napelem rendszer kiépítve (bővítési lehetőség opcionális).
  • Elektromos hálózat (kábel-TV, telefon csőhálózat) kiépítve, Schneider szerelvények.
  • Riasztó csövezés és kábelezés kiépítve, utcai kültéri lámpák felszerelve.
  • Teljes víz,-csatorna,-gáz hálózat kiépítése folyamatban.
  • Fűtés hálózat előkészítve (kondenzációs gázkazán 100 literes puffertartállyal), fürdőszoba, konyha, étkező, előtér és garázs padlófűtéssel, a hálószobák és a nappali padlófűtéssel és klímaberendezéshez előkészítve.
  • A vételár tartalmazza a fűtés és melegvíz ellátás készülékeinek felszerelését és üzembehelyezését.
  • Kandalló csatlakozási lehetőség előkészítve.

A garázsajtó (Hörmann, szekcionált) távirányítással ellátva, a kertkapu távirányításra előkészítve.

Ár: 
megállapítás alatt
Térkép: